门禁维修技术
您只需一个电话我们将提供最合适的产品,让您花最少的钱,达到最好的效果
- 全国统一服务热线
- 13512718711
最新资讯
 
        全国统一服务热线:
13512718711售前13512718711售后
客服QQ:1422773282
手机:13538805895(李生)
手机:13512718711(符工)
E-mail:gzpengdakeji@foxmail.com(李)
服务范围:天河区、越秀区、海珠区、白云区、荔湾区、黄埔区、番禺区、南沙区、花都区
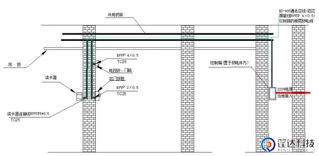
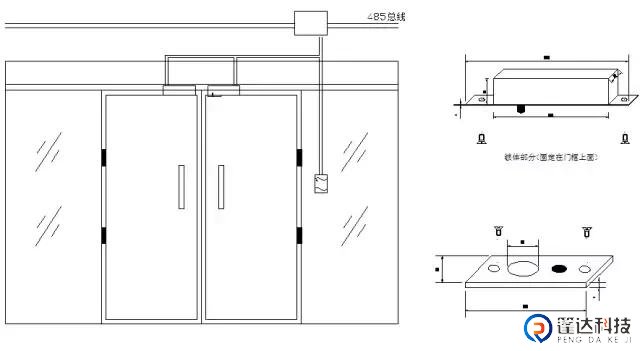
门禁系统提前预埋线路、管线图及电锁安装示图
 文章出处:弱电笔记 人气:发表时间:2020-02-27 20:57 
        门禁系统提前预埋线路、管线图、系统图、电锁安装图
很多时候在安装门禁时,都需要提前预埋门禁系统的管线,这样安装起来不仅美观,其隐蔽也使得安装性提高很多。简的说就是走暗线,需要在装修的同时把门禁系统的线路按照指定的位置以及规定的标准提前预埋好。但很多装修公司并不会考虑这些,只有业主们根据自己的需要提出要求后,装修师傅才会把这些线路预埋好。
门禁系统安装布线_公司装修如何提前放门禁线
如何提前预埋好门禁系统的线路呢?可以让装师傅们看完正面的门禁安装大样图、管线图、系统图、电锁安装示图,自然心中有数。


	▲门禁安装大样图




	▲门禁设备安装三视图



最新资讯
- 2023-06-04 动态人脸识别是目前市场最受欢迎的门禁系统
- 2022-05-11 人脸识别门禁系统在智慧小区中的应用
- 2021-10-13 门禁系统
- 2021-09-18 新款中控F7+云门禁智能远程管理
- 2021-05-11 2021广州动态智能人脸识别摄像头门禁监控门禁安
- 2021-03-18 二维码门禁安全吗?
- 2020-11-13 建筑工地实名制人脸识别门禁道闸
- 2020-09-05 如何防止门禁系统"失禁"?
- 2020-09-05 刷人脸识别门禁系统的作用
- 2020-09-05 门禁系统管理方法

